DUBLIN
UNIQUE
250m2
200
Our amazing Dublin City Centre warehouse studio is most definitely one of a kind.
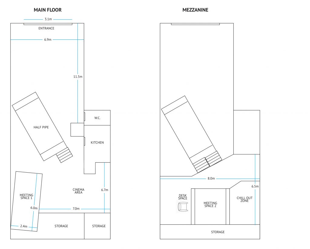
The space boasts a number of unique features like a half pipe with inbuilt stairs leading to our upper mezzanine level, a wood-fired pizza oven, a shipping container meeting area, a cinema room and even a swing.
The main space can accommodate 100-150 people depending on usage with the upper and back areas holding a further 50. Upstairs, the mezzanine level is split between three areas – a chill out zone, a secondary meeting space and additional desk space.
Our day rates start at €550. You will have access to the space from 8am-10pm.
Full pre-payment is required before usage of the space. Tenants can cancel up to a month before for a full refund.
We are flexible on all types of events and have hosted live art battles, product launches, art exhibitions, movie screenings, music video shoots, photo shoots and launch parties.
If you have an idea, throw it at us and we’ll do our best to make it happen. We’re happy to work with you to transform the space in whatever way is needed for your event. Put down floor covering, paint the walls, build an extension, whatever you need.
Any questions, just shout!
As we are a working studio we have lots of tools and materials on hand to help you with your event. We love getting involved and have plenty of creative brains to bring your ideas to life.
Lastly, we have a ‘leave it as you find it’ policy. You will be responsible for cleaning the space and removing all waste post event. We know nobody likes cleaning so we’ll help you with this to make sure everything is returned to normal.














